Клієнт:
Виробниче підприємство з міста Запоріжжя.
Завдання:
Автоматизація пакування сирку в пакування типу «Гассет» з рідиною.
 
                                            
    Виклик та особливі умови:
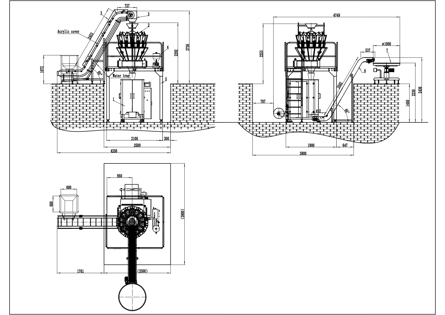
На перший погляд, завдання було стандартним: пакування сирку масою 350 г в пакет з додаванням порції рідини. Проте головною складнощою вимогою від клієнта стало нестандартне розміщення обладнання. Клієнт наполіг на тому, щоб основна упаковочна машина була встановлена в спеціально підготовлений приямок (углиблення в підлозі), а завантажувальний та відвідний транспортери залишалися на рівні основного цеху. Це було необхідно для організації ергономічного робочого процесу та інтеграції лінії в існуючий виробничий ланцюг.
Рішення від команди «ОМЕЛА»:
- Глибоке занурення та аналіз. Наша команда виїхала на місце для знайомства з клієнтом та проведення точних замірів. Ми ретельно вивчили майданчик майбутнього монтажу, щоб врахувати всі технічні нюанси та вимоги замовника.
- Індивідуальний підхід та проектування. Разом із клієнтом ми узгодили макет майбутнього пакета, що відповідає всім маркетинговим та технологічним вимогам. Після цього наші інженери розробили детальний технологічний проект та креслення лінії, які повністю враховували нестандартне розміщення в приямку.
- Комплексна поставка та швидкий запуск. Після затвердження всіх деталей ми здійснили постачання повного комплексу обладнання. Після надходження лінії на склад клієнта, наші фахівці оперативно виконали її монтаж, налагодження та запуск в експлуатацію.
 
                                            
    Склад реалізованої лінії:
- Мультиголовковий дозатор сирку
- Упаковочний автомат для пакування в пакет типу «Гассет»
- Дозатор рідини
- Завантажувальний транспортер
- Відвідний транспортер
- Накопичувальний стіл
- Підтримуюча платформа під дозатор
Результат:
Незважаючи на складність технічного завдання, нам вдалося реалізувати проект в стислі терміни. Ми поставили та ввели в дію повністю автоматизовану лінію, яка ідеально вписалася в відведений простір завдяки унікальній схемі встановлення з приямком. Лінія забезпечує стабільне та точне пакування продукції, повністю відповідаючи потребам клієнта.
 
     
     
     
     
     
     
    