Клиент:
Производственная компания, запустившая новое направление по выпуску супов быстрого приготовления, при поддержке гранта USAID.
Задача:
Разработать, поставить и наладить упаковочную линию для фасовки супов быстрого приготовления в пакет типа «дой-пак». Особенность задачи — продукт состоит из нескольких компонентов (овощи, мясо, бульон) (около 20 разных комбинаций), каждый из которых должен дозироваться отдельно с высокой точностью. При этом упаковка должна быть герметично запаяна после дозировки горячего бульона.
 
                                            
    Сложности проекта:
- Разнородность продукта: смесь вареных овощей и мяса с различными физико-механическими свойствами (липкость, разные фракции, вес, влажность).
- Высокая точность дозирования: необходимо было обеспечить стабильный вес каждого компонента в каждой упаковке.
- Горячий бульон: требовалась быстрая и безопасная доливка жидкости в сравнительно небольшой пакет.
- Стыковка оборудования разных производителей: китайские дозаторы и транспортеры, украинский упаковочный автомат.
- Жесткие ограничения по бюджету: проект должен был укладываться в рамки гранта USAID.
Решение от OMELA:
Компания OMELA взяла на себя полную реализацию проекта "под ключ" — от разработки концепции до запуска линии и ее интеграции.
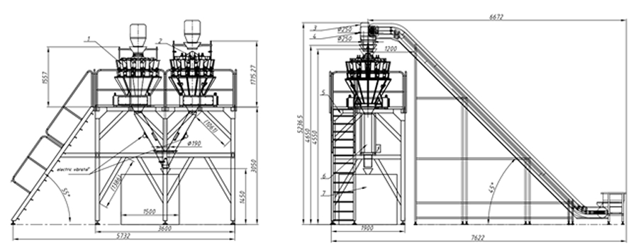
Состав линии:
- Вибрационный мультиголовочный дозатор — фасовка овощей.
- Шнековый мультиголовочный дозатор — фасовка мясных компонентов.
- Два загрузочных транспортера — подача продукта к дозаторам.
- Рабочая платформа — для размещения дозаторов и доступа к обслуживанию.
- Роторный упаковочный автомат (дой-пак) — прием доз, дозировка горячего бульона, запайка.
- Дополнительное оборудование — насос для бульона, регулирующий клапан, коммуникации (воздух, питание и др.).
Особенности реализации:
- OMELA интегрировала оборудование от китайских и украинских партнеров, обеспечив синхронную работу всех узлов.
- Под каждый компонент линии была проведена тщательная инженерная настройка с учетом свойств продукта.
- OMELA адаптировала конструкцию оборудования в процессе производства в соответствии с пожеланиями клиента (перемещение ступеней, доступ к узлам и т.д.).
- Специалисты OMELA выполнили монтаж и обвязку оборудования, а также обеспечили прокладку всех коммуникаций.
Результат:
- Надежная и гибкая упаковочная линия, адаптированная под сложный продукт.
- Точная дозировка каждого компонента обеспечивает стабильность рецептуры.
- Линия успешно запущена и функционирует в рамках нового производственного участка клиента.
- Клиент получил готовое решение, полностью соответствующее условиям гранта и собственным требованиям.
Новое решение позволило клиенту снизить затраты на упаковку благодаря использованию современных технологий и материалов.
 
                                            
    Проект реализован при поддержке USAID
 
     
     
     
                     
                                                